As one of Japan’s largest exhibitions for healthcare, nursing care, and geriatric medicine, Barrier Free is a cornerstone event for the industry. Orange Plus is honored to participate in this prestigious gathering. This exhibition provides a vital platform for us to showcase our innovative solutions and engage with industry leaders to shape the future of long-term care. We cordially invite you to join us and share your insights.
Date: April 15 (Wed.) – April 17 (Fri.)
Time: 10 am – 4:30 pm *The last day until 4:00 p.m.
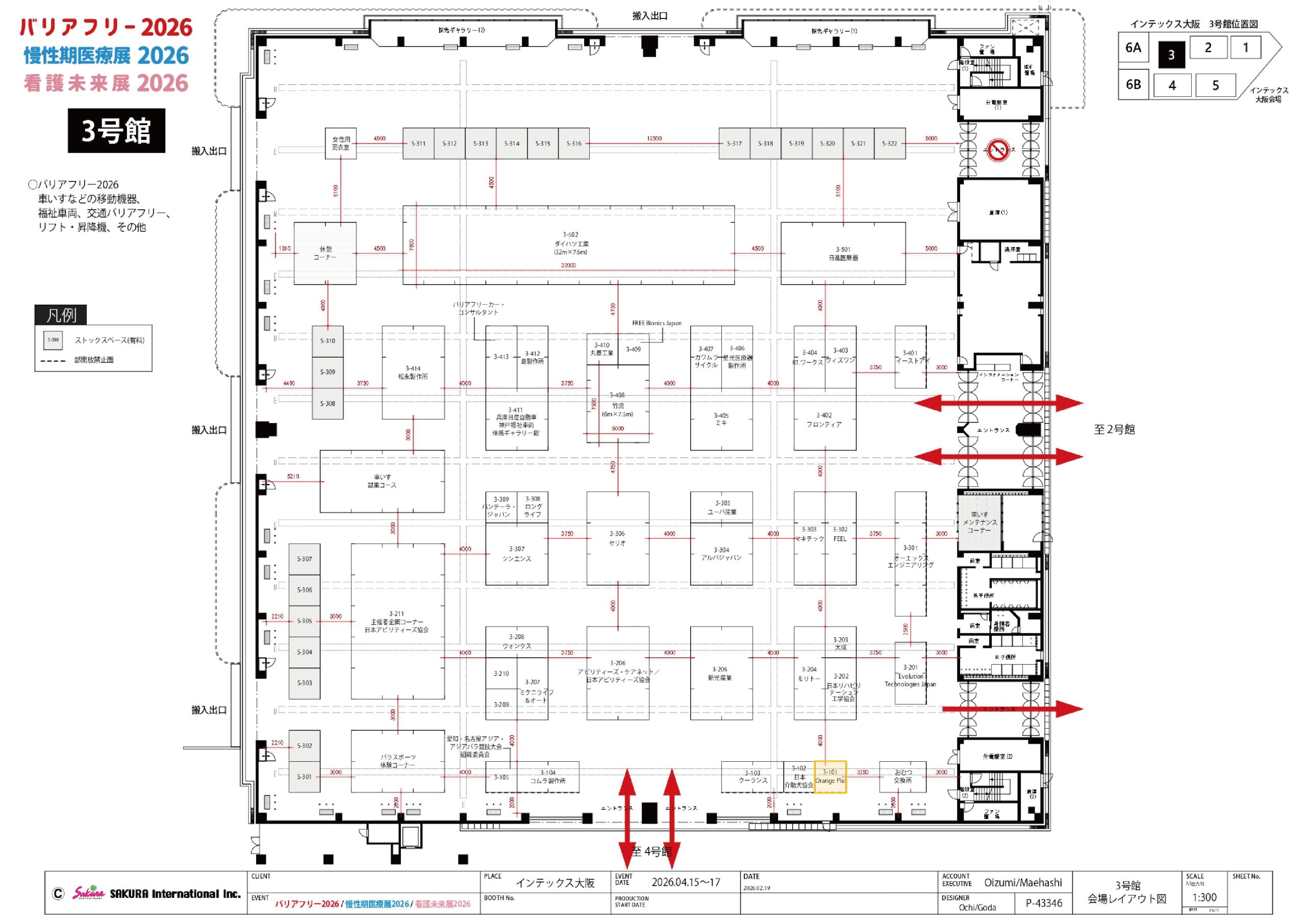
Booth Number: 3-101
Location: INTEX OSAKA (International Exhibition Center, Osaka)
Address: 1-5-102, Nanko-kita, Suminoe-ku, Osaka 559-0034
Website: https://www.tvoe.co.jp/bmk/english/
